INTERIOR DESIGN | RENDERING

The Professor’s Retreat is a bright and spacious midcentury getaway in the woods of the Berkshires. The 20’ x 30’ space sits in a renovated two-story 1960s home and features an indoor courtyard, living area, dining space, study, and bedroom. The courtyard spans both stories, with large floor-to-ceiling windows behind, allowing the surrounding greenery and light to flow into the space.

The furnishings are a combination of authentic midcentury forms paired with sculptural modern pieces to accent. Two designs by Sergio Rodrigues are featured, including the Mole Chair and Tonico Chair. Other pieces, such as the 265 Lamp, dining chair and bench by Pierre Jeanneret, and Tizio Lamp are also featured. Natural, sustainable textiles and finishes have been intentionally selected for the home, as both practical and lush choices.

Living room rendering of the Professor's Retreat.
Dining space rendering of the Professor's Retreat.
Floor plans of first level, showing space planning and furniture layout of living space, dining room, and courtyard.
Study rendering of the Professor's Retreat.
Bedroom rendering of the Professor's Retreat.
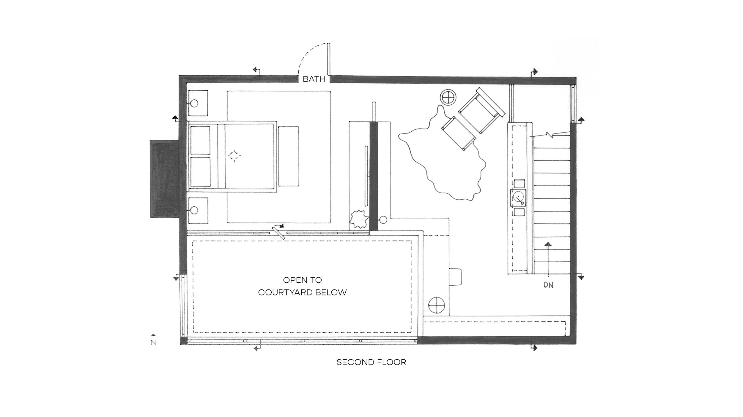
Floor plans of second level, showing space planning and furniture layout of study and bedroom.
South and west wall elevations, showing detailing of windows, bookshelves, and fireplace.
North and east wall elevations, showing detailing of french doors and railings.
Textile and finish map of the Professor's Retreat, showing various natural materials to be used throughout the home.